

重慶鮮小國小賓樓餐廳燈光設計餐廳燈具安裝案例--光柏士餐飲照明燈光設計
光柏士餐飲照明燈具廠家業務與客戶(重慶鮮小國小賓樓)一對一服務,項目細節溝通;了解餐廳的基本情況;餐廳工程的進度和餐廳需要的亮度要求等;客戶提供海鮮食客餐廳的施工圖,平面圖,效果等餐廳資料。
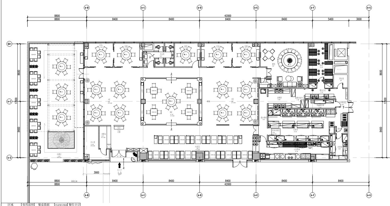
光柏士餐廳燈光設計案例--【重慶鮮小國小賓樓】--平面布置圖,
光柏士餐廳燈光設計案例--【重慶鮮小國小賓樓】--效果圖
光柏士餐廳燈光設計案例--【重慶鮮小國小賓樓】--大廳餐桌布置圖-餐廳大廳效果圖,
光柏士餐廳燈光設計案例--【重慶鮮小國小賓樓】--餐廳前臺收銀臺效果圖,
光柏士餐廳燈光設計案例--【重慶鮮小國小賓樓】--餐廳包房包廂效果圖,
光柏士餐廳燈光設計師通過客戶發過來的資料,餐廳的面積,餐廳的高度,餐廳的空間設計,餐桌分布,餐廳的環境,和實地跑餐廳工地現場群等等的具體情況,來布置合適的燈光,選擇適合的燈具。
光柏士餐廳燈光設計師與客戶確定【重慶鮮小國小賓樓】的燈光布局與餐廳燈具應用,可根據客戶的要求出燈光設計部分圖,燈光燈具應用清單。
光柏士餐廳燈光設計師出燈具燈位圖給海鮮食客施工方,施工方可以根據燈位安裝指導圖安裝。
光柏士餐廳燈光設計師出燈具燈位準確明了,施工方可以根據燈具的類型區別安裝,不會出現弄錯不同區域的燈具;不會弄錯燈具的參數,角度,瓦數功率等情況。
【重慶鮮小國小賓樓】的空間照明燈具,全部使用光柏士定制餐飲燈具,餐廳桌面照明射燈全部選用,97超高顯指健康燈光。