

廣州白云精品飲品小吃店餐廳燈光設計案例
光柏士餐飲照明燈具廠家業務與客戶杜總(小吃飲品店)一對一服務,項目細節溝通;了解餐廳的基本情況;餐廳工程的進度和餐廳需要的亮度要求等;客戶提供施工圖,平面圖,效果等餐廳資料。
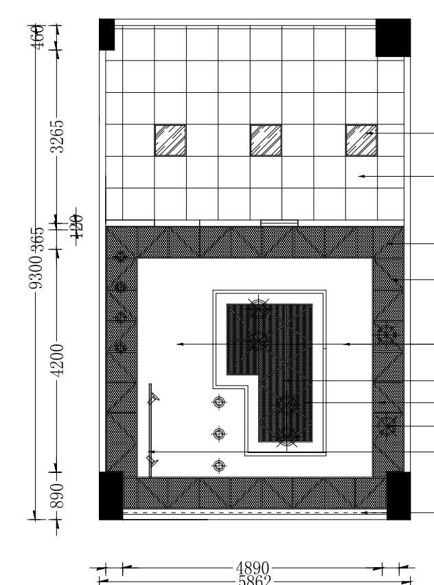
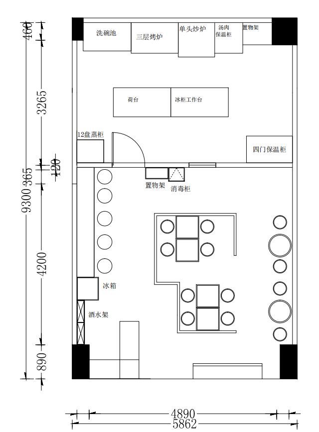
1.客戶提供的資料--小吃飲品店平面布置圖,頂面布置圖

小吃飲品店效果圖

收銀臺區域--使用餐飲專用軌道燈照射臺面 3000K 24°RA97

飲品小吃整個店面環境--燈光整體使用暖色調,襯托飲品的裝飾布局,重點照射裝飾畫,擺設,餐廳。

定制灰色裝飾燈--配置餐廳專用的餐吊燈燈杯 2800K RA97 20°

定制檸檬黃裝飾燈--配置餐廳專用的餐吊燈燈杯 2800K RA97 20°;增加吸頂軌道燈照射裝飾畫 3000K RA97 24°

替換吧臺定制裝飾燈的球泡--配置餐廳專用的餐吊燈燈杯照射臺面 2800K RA97 20°;

替換吧臺定制裝飾燈的球泡--配置餐廳專用的餐吊燈燈杯照射臺面 2800K RA97 20°
光柏士餐飲照明燈光設計師通過圖紙了解餐廳的基本結構,餐廳的裝修風格,餐廳的平面布置等情況
與客戶確認餐廳的裝修情況,水電的安裝,現場的修改調整等,然后與客戶確認燈光方案。
待客戶確認方案后提供--裝燈圖紙


洗墻專用軌道燈:還原軟裝空間顏色,使色彩更加靚麗,提升顧客的視覺感受,提升餐廳檔次。高功率因數無頻閃電源,強大防眩功能,健康的燈具,無頻閃,無眩光,大幅度提升顧客舒適度。適用:照射擺設,綠植,墻面文化,重點打光。