

重慶鮮小國小濱樓燈光改造項目---餐廳燈具安裝完成后,光柏士餐飲照明業務員上門調試燈光

重慶鮮小國小濱樓燈光改造后效果圖

光柏士餐飲照明燈光改造后的效果對比

光柏士餐飲照明燈光改造后的效果對比
更多的實拍效果

裝飾隔窗的燈光效果--使用光柏士專業洗墻照明燈具照射裝飾畫

餐桌燈光效果--使用光柏士餐吊燈專用的燈杯照射桌面

包間燈光效果--

包間外墻的燈光效果
重慶小濱樓餐廳的業主7月份是通過微信聯系到的我們的餐廳燈光改造業務李先生的。通過與業務的溝通了解到了我們光柏士餐飲照明的專業,希望由光柏士餐飲照明燈光設計來改造小濱樓餐飲店。
光柏士餐飲照明燈具廠家業務與客戶一對一服務,項目細節溝通;了解餐廳的基本情況;餐廳工程的進度和餐廳需要的亮度要求等;客戶提供海鮮食客餐廳的施工圖,平面圖,效果等餐廳資料。
光柏士餐廳燈光設計案例--【重慶小濱樓餐廳】--餐廳燈具設計效果圖

【重慶小濱樓餐廳】--門口設計效果圖

【重慶小濱樓餐廳】--卡座設計效果圖
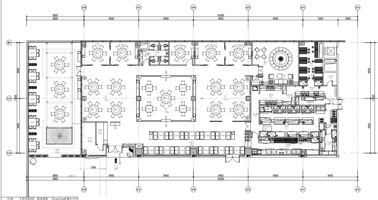
光柏士餐廳燈光設計案例--【重慶小濱樓餐廳】--平面布置圖,

光柏士餐廳燈光設計師通過客戶發過來的資料,餐廳的面積,餐廳的高度,餐廳的空間設計,餐桌分布,餐廳的環境,餐廳對外的人群等等的具體情況,來布置合適的燈光,選擇適合的燈具。
光柏士餐廳燈光設計師確定【重慶小濱樓餐廳】的燈光布局,可根據客戶的要求出燈光設計部分圖,燈光燈具應用清單。等待客戶的確認。

重慶小濱樓餐廳業主已經確認了光柏士專業餐飲照明的燈光方案,確定了合作;
光柏士餐廳燈光設計師出燈具燈位圖給施工方,施工方可以根據燈位安裝指導圖安裝。
光柏士餐廳燈光設計師出燈具燈位準確明了,施工方可以根據燈具的類型區別安裝,不會出現弄錯不同區域的燈具;不會弄錯燈具的參數,角度,瓦數功率等情況。
【小濱樓燈光改造項目】的空間照明燈具,全部使用光柏士定制餐飲燈具,餐廳桌面照明射燈全部選用,97超高顯指2800K健康燈光防眩軌道燈照射/菜品射燈;洗墻照明選用02款GBS-CYG02超防眩射燈,餐飲軌道燈等照射。

