

牛大哈潮汕火鍋餐廳燈光設計餐廳燈具安裝案例--光柏士餐飲照明燈光設計---

牛大哈潮汕火鍋餐廳的何主是通過微信聯系到的我們的餐廳燈光改造業務李先生的。通過與業務的溝通了解到了我們光柏士餐飲照明的專業,希望由光柏士餐飲照明燈光設計來改造牛大哈潮汕火鍋餐飲店。
光柏士餐飲照明燈具廠家業務與客戶一對一服務,項目細節溝通;了解餐廳的基本情況;餐廳工程的進度和餐廳需要的亮度要求等;客戶提供海鮮食客餐廳的施工圖,平面圖,效果等餐廳資料。
牛大哈潮汕火鍋餐廳全程跟蹤對接

光柏士餐廳燈光設計案例--【牛大哈潮汕火鍋餐廳】--餐廳燈具裝燈效果圖

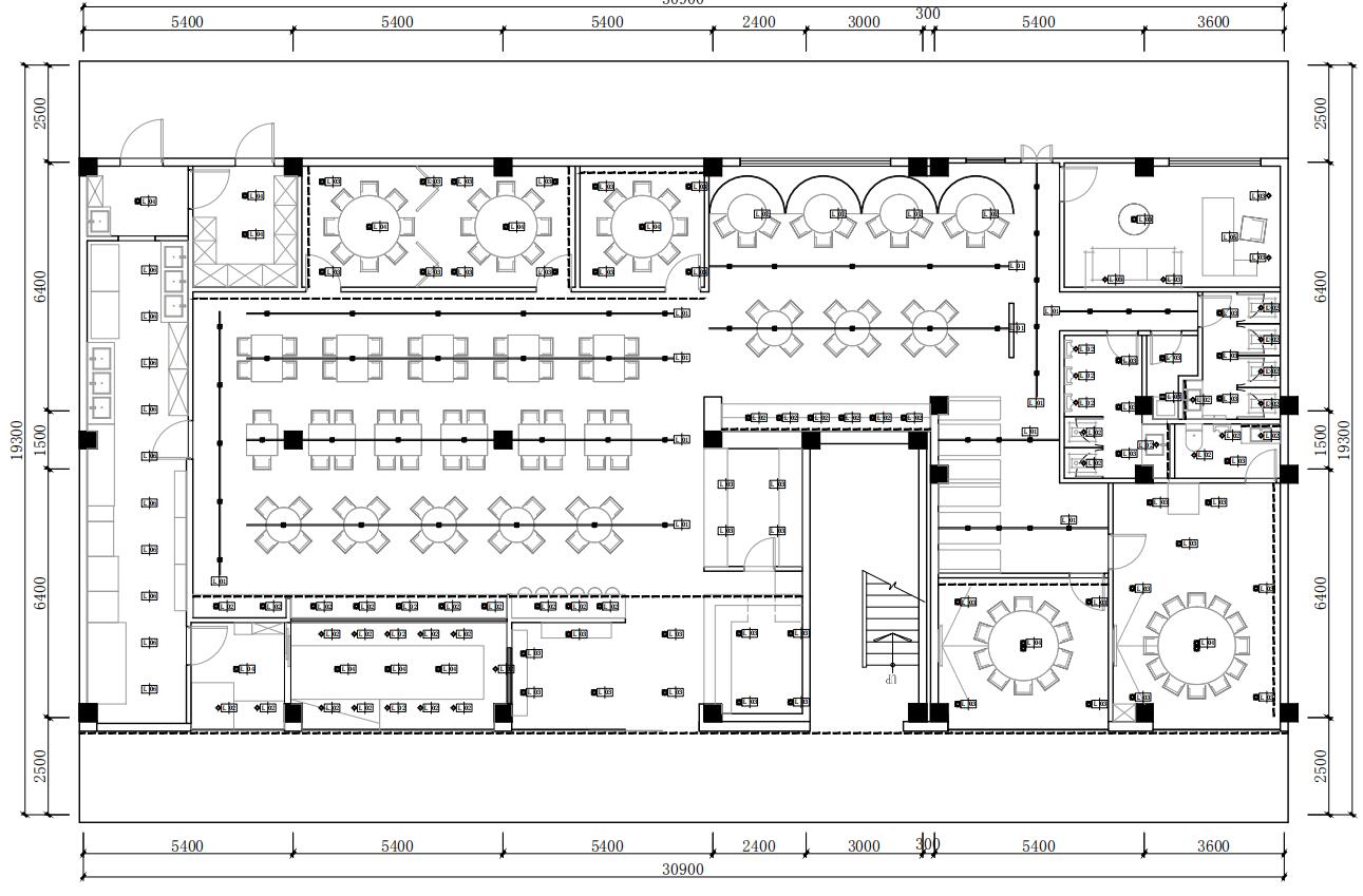
光柏士餐廳燈光設計案例--【牛大哈潮汕火鍋餐廳】--平面布置圖,

光柏士餐廳燈光設計師通過客戶發過來的資料,餐廳的面積,餐廳的高度,餐廳的空間設計,餐桌分布,餐廳的環境,餐廳對外的人群等等的具體情況,來布置合適的燈光,選擇適合的燈具。
光柏士餐廳燈光設計師確定【牛大哈潮汕火鍋餐廳】的燈光布局,可根據客戶的要求出燈光設計部分圖,燈光燈具應用清單。等待客戶的確認。
牛大哈潮汕火鍋餐廳何主已經確認了光柏士專業餐飲照明的燈光方案,確定了合作;然后有光柏士餐飲照明生產車間負責生產。
光柏士餐廳燈光設計師出燈具燈位圖給海鮮食客施工方,施工方可以根據燈位安裝指導圖安裝。

光柏士餐廳燈光設計師出燈具燈位準確明了,施工方可以根據燈具的類型區別安裝,不會出現弄錯不同區域的燈具;不會弄錯燈具的參數,角度,瓦數功率等情況。
【牛大哈潮汕火鍋餐廳】的空間照明燈具,全部使用光柏士定制餐飲燈具,餐廳桌面照明射燈全部選用,97超高顯指2800K健康燈光防眩軌道燈照射/菜品射燈;洗墻照明選用02款GBS-CYG02超防眩射燈,餐飲軌道燈等照射。

牛大哈潮汕火鍋餐廳裝燈現場--上門指導,

光柏士餐飲照明燈光設計--牛大哈潮汕火鍋餐廳項目現場服務,燈光指導燈具安裝

光柏士餐飲照明燈光設計--牛大哈潮汕火鍋餐廳項目現場服務,燈光指導燈具安裝


光柏士餐飲照明燈光設計--牛大哈潮汕火鍋餐廳項目現場服務,燈光指導燈具安裝